Aluprof MB-60
Perfeito para as janelas, portas, alpendres, montras e vários tipos de estruturas espaciais. O sistema MB-60 / 60HI utiliza ruturas térmicas perfiladas em poliamida reforçada com fibra de vidro.
1.7
Uw for Ug = 1,1
(espaçador de alumínio)
2.2
Uf [W/m2K]
2
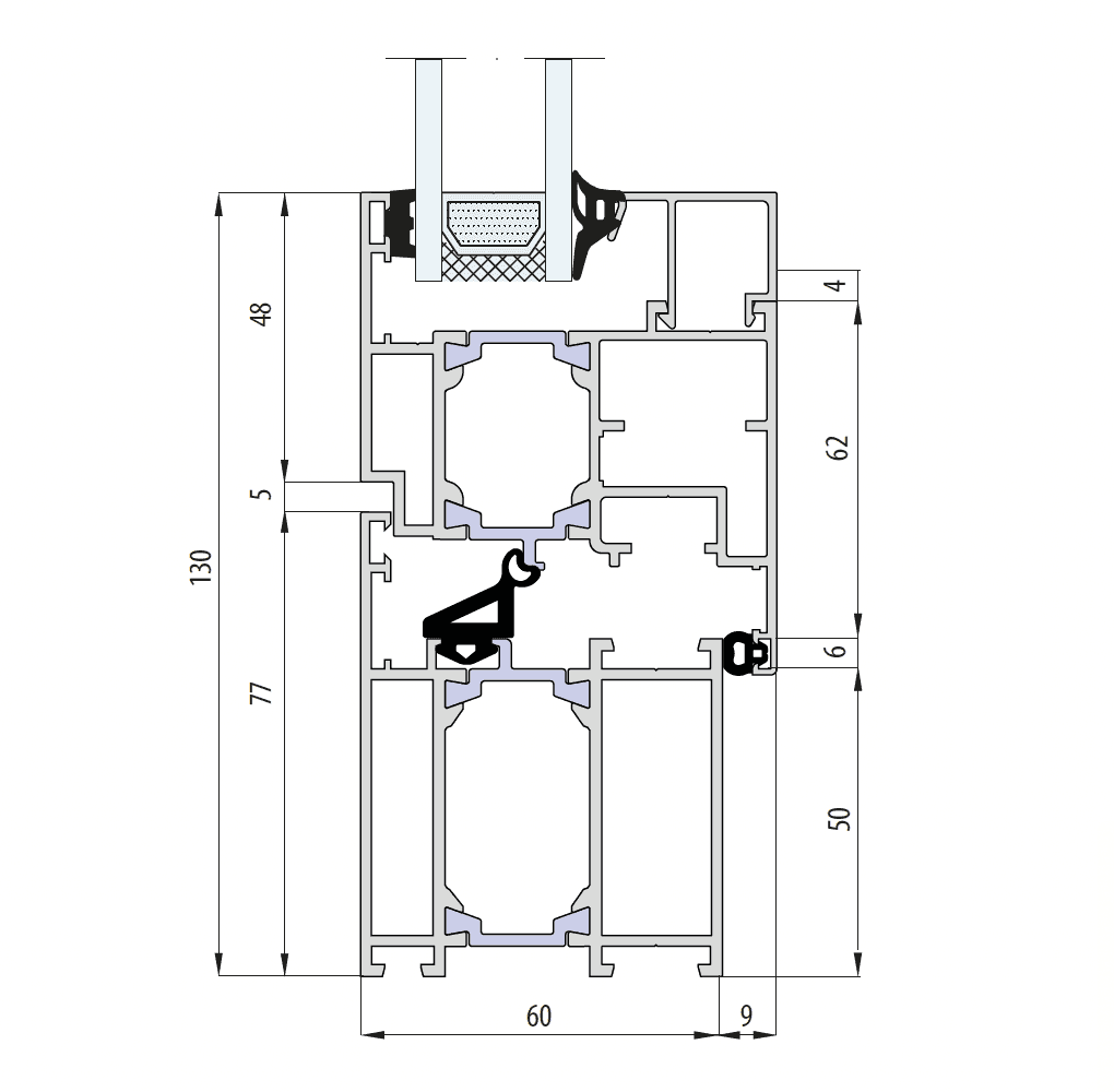
60
Desenho do corte
Classes:
Ar - Class 4
Água - Class 9A
Vento - Class C3
perfil com uma profundidade de 60 mm
caixilho com uma profundidade de 60 mm (porta/janela)
folha com a profundidade de 60 mm/69 mm (porta/janela)
vidros até 41 mm (janela fixa) / até 50 mm (janela móvel)
tamanho máximo da janela - A até 2400 mm, L até 1250 mm
peso máximo da folha (porta/janela) 120/130 kg??
lacado na gama completa de cores RAL K7 e, a pedido, noutras cores (utilizar o código)














