Reynaers Concept System 77
O ConceptSystem 77 é um formato de janelas versátil que se molda a praticamente todos os projetos arquitetônicos, devido às suas inúmeras alternativas de design. Alinhado a diversos níveis de proteção contra invasões, materializa janelas de alumínio confiáveis, resilientes e elegantes.
1.0
Uw for Ug = 0.5
(espaçador Ultimate)
3
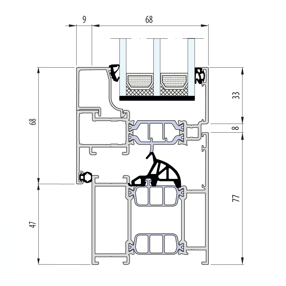
68
Desenho do corte
Classes:
Ar - Class 4
Água - Class 9A
Vento - Class С3
As janelas CS 77 podem ser escolhidas numa de três versões térmicas: standard, quente HI e a mais quente - HI+. O sistema permite a utilização de vidros triplos com bom isolamento térmico e acústico. Nas janelas FIX é possível colocar o vidro a partir do exterior.
profundidade: 68 mm
disponível nas seguintes variantes: Standard, HI e HI+
vidros exteriores disponíveis em janelas FIX
perfis pré-anodizados opcionais
envernizamento em todas as cores da paleta RAL















