Reynaers Slim Line 38
O sistema SlimLine 38 da Reynaers foi desenvolvido para a arquitetura moderna focada na colocação do vidro em áreas extensas. É também ideal para utilização em projetos de renovação de edifícios industriais. Permite-lhes manter o estilo tradicional das janelas de aço.
1.0
Uw for Ug = 0.5
(espaçador de alumínio)
1.9
Uf [W/m2K]
3
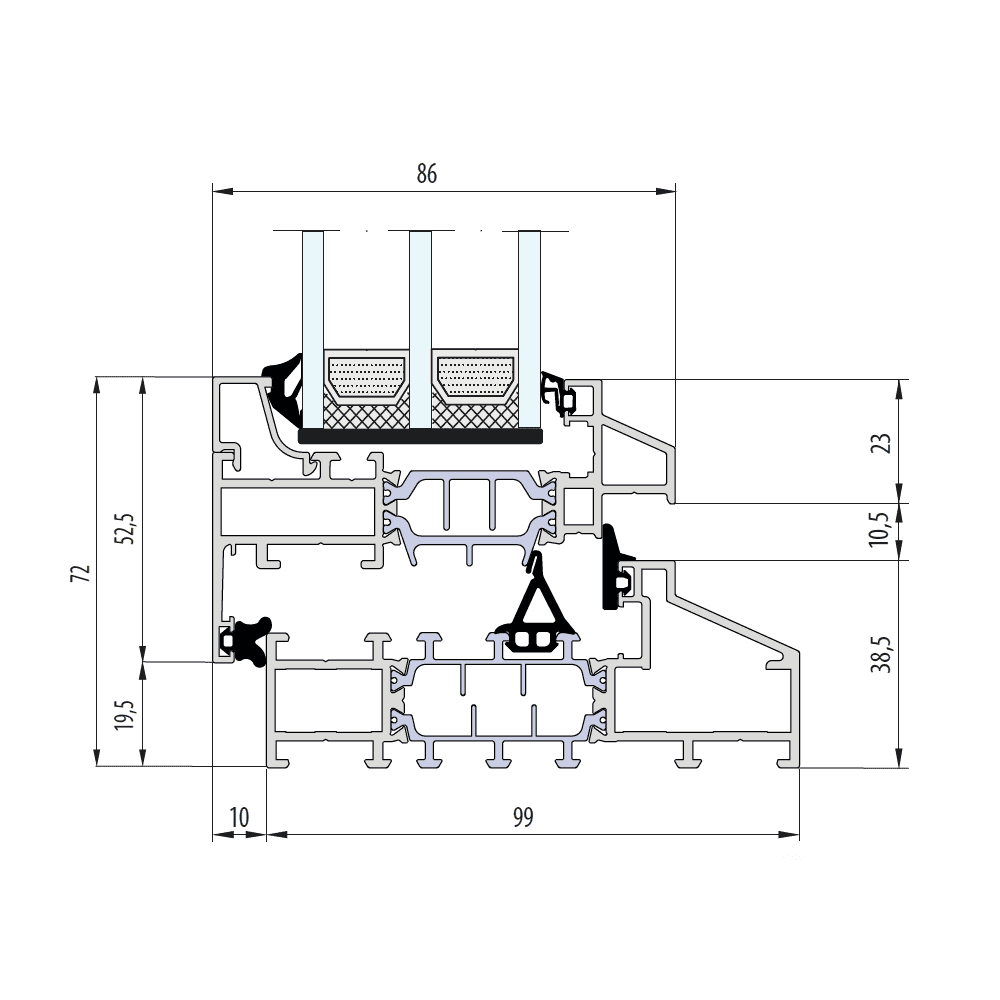
76-99
Desenho do corte
Classes:
Ar - Class 4
Água - Class 9A
Vento - Class С3
O SL 38 oferece os mais elevados níveis de desempenho com excelentes níveis de segurança, resistência às condições climatéricas e isolamento térmico.
Com o "look &feel" do aço, mas isolamento muito superior, as janelas SlimLine 38 combinam perfeitamente com qualquer projeto contemporâneo ou de renovação. As janelas em alumínio, muito duráveis, oferecem uma liberdade de design ilimitada graças às suas variantes de design minimalistas - Classic, Cubic e Ferro - que conferem um estilo eclético e pessoal, ao mesmo tempo que materializam a opção por um estilo de vida sustentável.
profundidade 76-99 mm
vidros até 55 mm de largura
acessórios Sobinco Tilt&Turn
revestimento em qualquer cor da paleta RAL
o sistema está disponível numa versão com rutura térmica
3 opções estéticas: Classic, Ferro, Cubic
Classic
Cubic
Ferro




















