Smart slide
A Smart Slide é uma porta de correr, mas o mecanismo de fecho inovador permite um funcionamento simples e intuitivo, semelhante ao das portas de levantar e correr.
O sistema também merece ser recomendado aos nossos clientes por outro motivo. Com ele, é possível realizar facilmente construções de maiores dimensões,
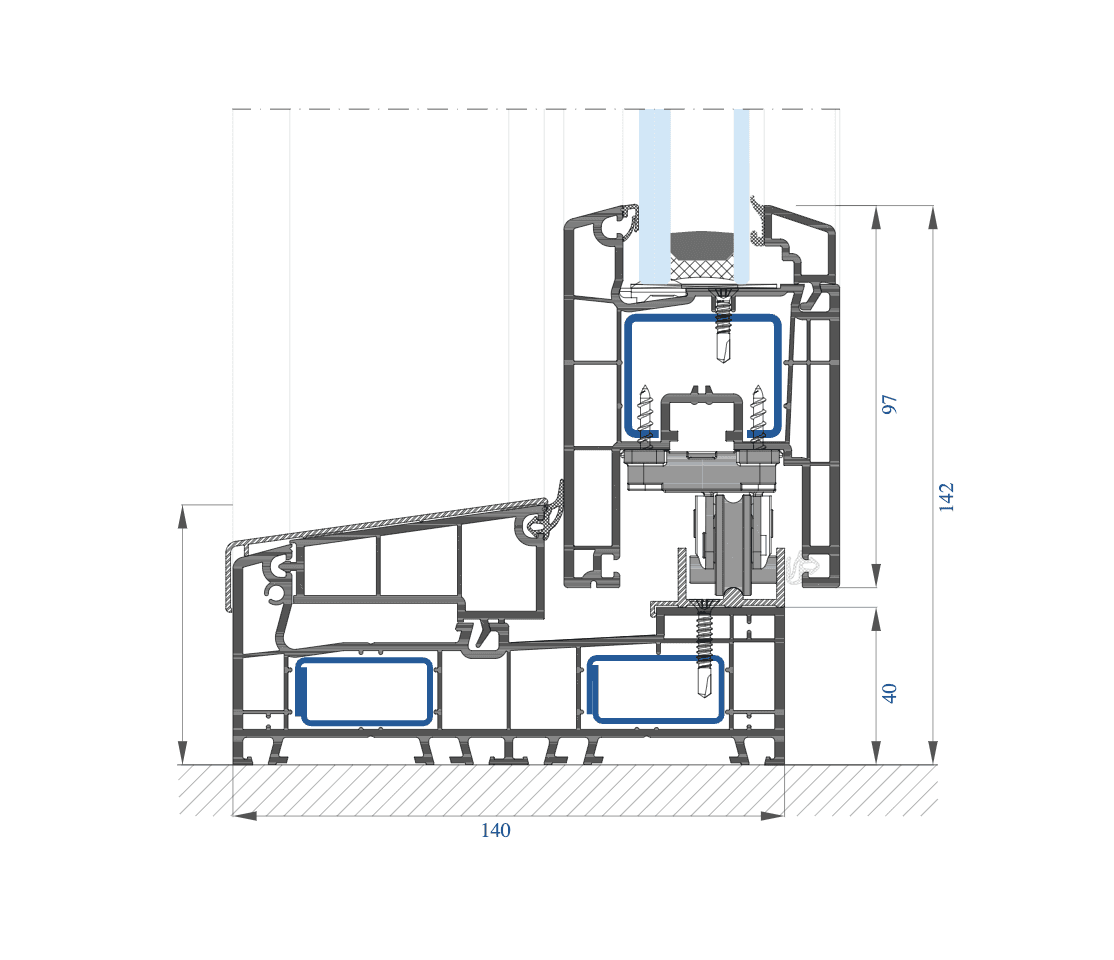
Desenho do corte
- SISTEMAS DE ABERTURA Correr de 1 ou 2 folhas. 
- PERFIS DE PVC Sistema de correr para portas. 
- FERRAGENS Ferragens com fecho de maneta. 
- RUDÍZIOS Rodízios até 200 kg de peso por folha móvel. 
- VIDRO Espessura de vidro de 10 a 41 mm. 












