Série Guilhotinas
Um sistema de guilhotina em PVC é um tipo de janela ou porta que abre verticalmente fazendo deslizar uma folha (painel) para cima e para baixo dentro de outra folha fixa. Disponível em várias configurações, com uma folha móvel (simples) ou ambas as folhas móveis (dupla).
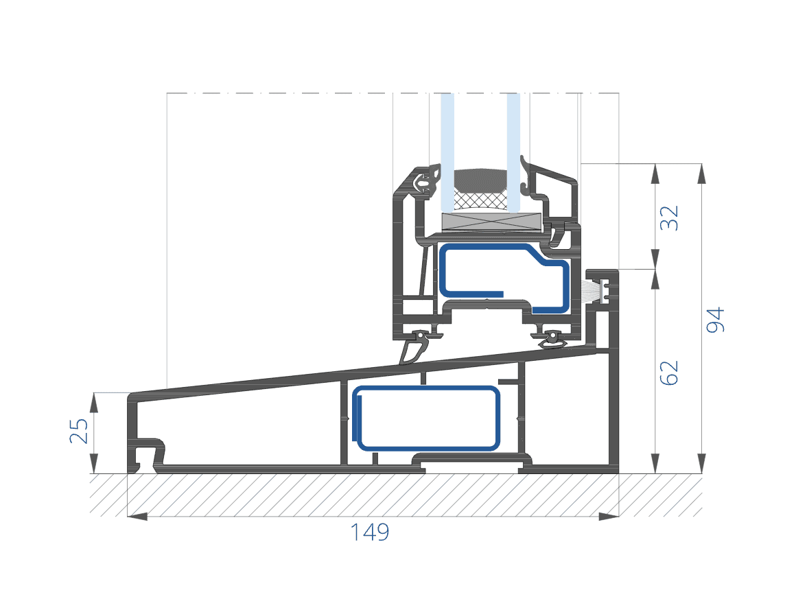
Desenho do corte
Norma alemã DIN 17223/1 (fio de aço redondo para molas, fio de aço de carbono para molas e demais condições técnicas). • Norma internacional ISO 4540 (ensaio de salinidade).











