Aluprof MB 86 FOLD LINE HD
As portas bifold oferecem aos seus utilizadores uma enorme liberdade, permitindo-lhes aproveitar ao máximo o bom tempo e eliminam quase na totalidade a barreira entre o interior de um edifício e a sua envolvente. Podem ser utilizadas para criar uma excelente e ampla saída para um pátio ou para ligar um restaurante ou café aos espaços exteriores que utiliza sazonalmente.
1,4
Uw
120
Peso máximo da folha (kg)
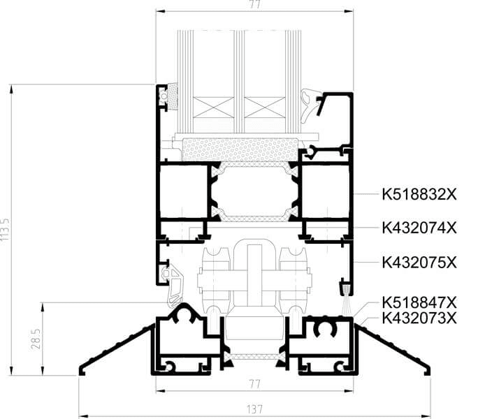
Desenho do corte
A ALUPROF MB-86 FOLD LINE HD é uma solução que proporciona muito conforto na sua utilização do seu dia a dia. Ao mesmo tempo que apresenta elevados parâmetros técnicos, também permite a criação de estruturas de grande dimensão. As portas bifold podem abrir-se para o exterior ou para o interior e os painéis podem ser configurados conforme desejado. Este produto de última geração foi concebido para satisfazer as exigências mais complexas dos seus utilizadores, arquitectos e projectistas.
Devido às propriedades do sistema e desempenho rigoroso comprovado através de um regime de testes exigente, o MB-77HS é ideal para muitas aplicações domésticas e comerciais, fornecendo uma solução de trabalho confortável, segura, económica e de baixa manutenção para o utilizador final.
Permeabilidade ao ar: classe 4, EN 12207
Estanquidade à água: classe 9A, EN 12208
Isolamento térmico: Uf a partir de 1,4 W/(m2K)
Resistência ao vento: até classe C4, EN 12210
Resistência a intrusão: até classe RC2








