Aluprof MB 59
Com o seu elevado isolamento térmico e acústico, aliado a uma excelente estanquidade à água e ao ar, o MB-59HS cumpre todos os requisitos de conservação de energia e proteção do ambiente.
1,23
Uw
300
Peso máximo da folha (kg)
2-3
Carris
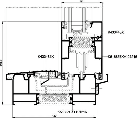
Desenho do corte
A porta de elevar e correr é o elemento integrador perfeito que liga quartos ou jardins de inverno com espaços externos. Oferece uma saída conveniente para a varanda, terraço ou jardim.
Quando na posição aberta, a porta não ocupa espaço no interior da sala, ao mesmo tempo que permite um contacto muito bom com o ambiente o que aumenta ainda mais o conforto de utilização. O MB-59HS oferece-lhe grandes possibilidades em aplicações de portas elevatórias e deslizantes, e é a solução optimizada em termos de construção e dimensões dos seus perfis e caixilharias.
Permeabilidade ao ar: classe 3, EN 12207
Resistência ao vento: até classe C3, EN 12210
Isolamento térmico: Uf desde 1.8 W/(m2K)










