Aluplast ideal 4000
O projeto único e equilibrado, juntamente com uma variedade extensa de opções de sistema, proporciona oportunidades infinitas para a fabricação de janelas de pvc, destacando assim, o seu próprio estilo. O sistema universal Janelas de PVC Aluplast Ideal 4000 é perfeito para a arquitetura residencial contemporânea, tanto unifamiliar quanto multifamiliar, além de ser excelente para reformas. Neste último cenário, onde frequentemente não se pode expandir a abertura da janela, um benefício particularmente relevante é a altura diminuída da folha e do aro, que aumenta a área envidraçada e permite a passagem de mais luz.
1,0
Uw for Ug = 0.7
(espaçador Ultimate)
2
juntas
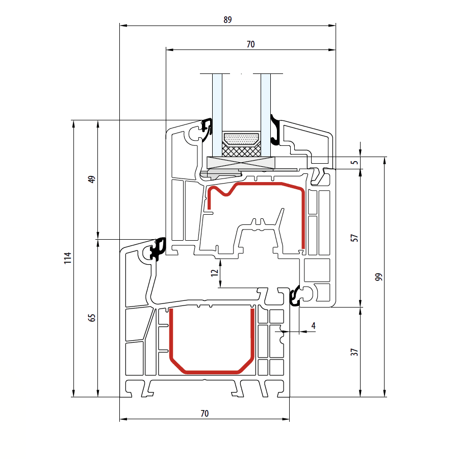
5
câmaras (aro)
70
profundidade (mm)
R
renovação
Desenho do corte
Valor Uf = 1,3 W/m2K
Sistema de vedante com dois níveis de estanquidade
Espessura de vidro de até 41 mm
Distintos tipos de desenho para a folha
RC2: Segurança anti-roubo comprovada
Excelente isolamento acústico, até conseguir alcançar a classe IV
Sistema de 5 câmaras na combinação standard
Disponível com vários tipos de cores lacadas e imitação de madeira






































































