Aluplast Energeto Neo
Energeto Neo significa novas possibilidades de design, que, graças à diversidade de opções, se revelarão em todos os tipos de edifícios. Os perfis apresentam formas simples e cubistas que remetem para o estilo das janelas de alumínio. Com as estruturas aludec e woodec, agradáveis ao tato, disponíveis para Energeto Neo, é possível criar janelas de PVC únicas e diferentes de todas as outras.
0,86
Uw for Ug = 0.5
(espaçador Ultimate)
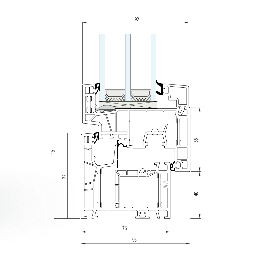
3
juntas
6
câmaras
76
profundidade (mm)
Desenho do corte
O novo sistema utiliza soluções que melhoram o isolamento térmico através da adição de uma junta central e da eliminação de pontes de calor. A última destas características foi obtida através da substituição do núcleo de aço clássico por um reforço compósito.
A construção das janelas é também mais rigorosa. Isto deve-se às tecnologias Powerdur Inside e Bonding Inside que melhoram os parâmetros estáticos do sistema, o que se traduz numa maior durabilidade e fiabilidade. A segurança antirroubo, por sua vez, é aumentada pelo sistema Safetec Inside.
Uf = 1,00 W/m²K (*)
Condutância total da janela até Uw = 0,73 W/m²K
Posibilidade de acabamentos woodec e aludec
Tecnologia powerdur Inside (reforço interior)
Tecnologia Bonding Inside (vidro colado)
Proteção anti-roubo até à classe RC2
Estética reta
Foam Inside opcional
(*) Com vidro triplo standard Ug = 0,7






































































