Naturo 80 HST ALU
Escolha o Naturo 80 HST ALU se estiver à procura dele:
Uma estrutura de madeira com um aspeto moderno de alumínio no exterior - uma solução elegante que combina naturalidade e inovação.
2,8
Altura de construção [m]
1-2
Carris
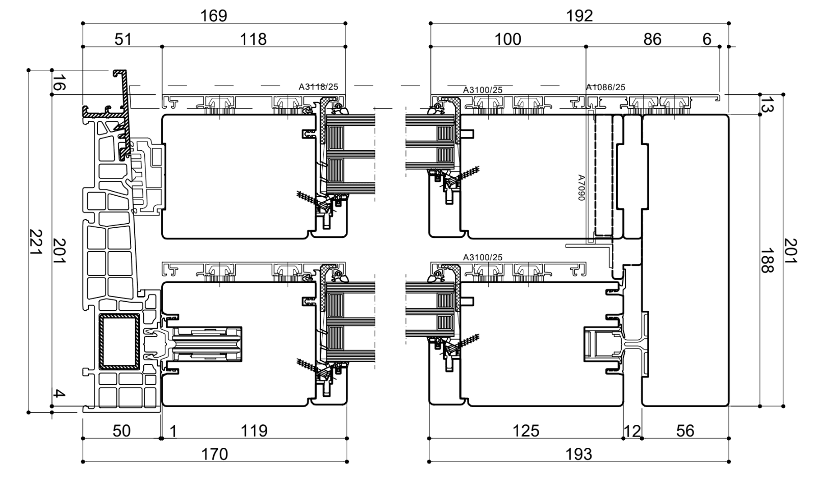
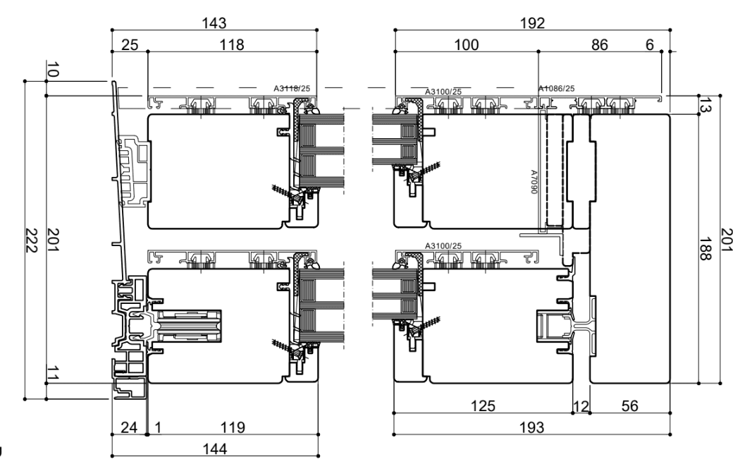
188
profundidade de construção [mm]
Ensaios
perfil com uma profundidade de construção de 188 mm
envidraçamento com unidades de vidro de 35-44 mm
peso máximo da folha 400 kg
dimensão mínima da folha 800 mm
dimensão máxima da folha 3300 mm
Tipos de acabamento da madeira: cores da paleta stain, cores da paleta RAL, verniz incolor, impregnação incolor, madeira em bruto
Colaboramos com fornecedores que possuem certificação FSC























