Naturo 68 HST
A serie Naturo 68 HST, é um sistema de madeira de corredora elevadora relativamente leve, caracterizado pela sua profundidade de instalação reduzida, para um produto da sua classe. Permite uma operação fácil, mesmo em construções de grande dimensão. Este sistema permite a criação de grandes envidraçados, adaptando-se perfeitamente às tendências arquitectónicas actuais, e o design com soleira baixa facilita significativamente a circulação entre o interior da casa e o terraço ou jardim.
2,8
Altura de construção
1-2
Carris
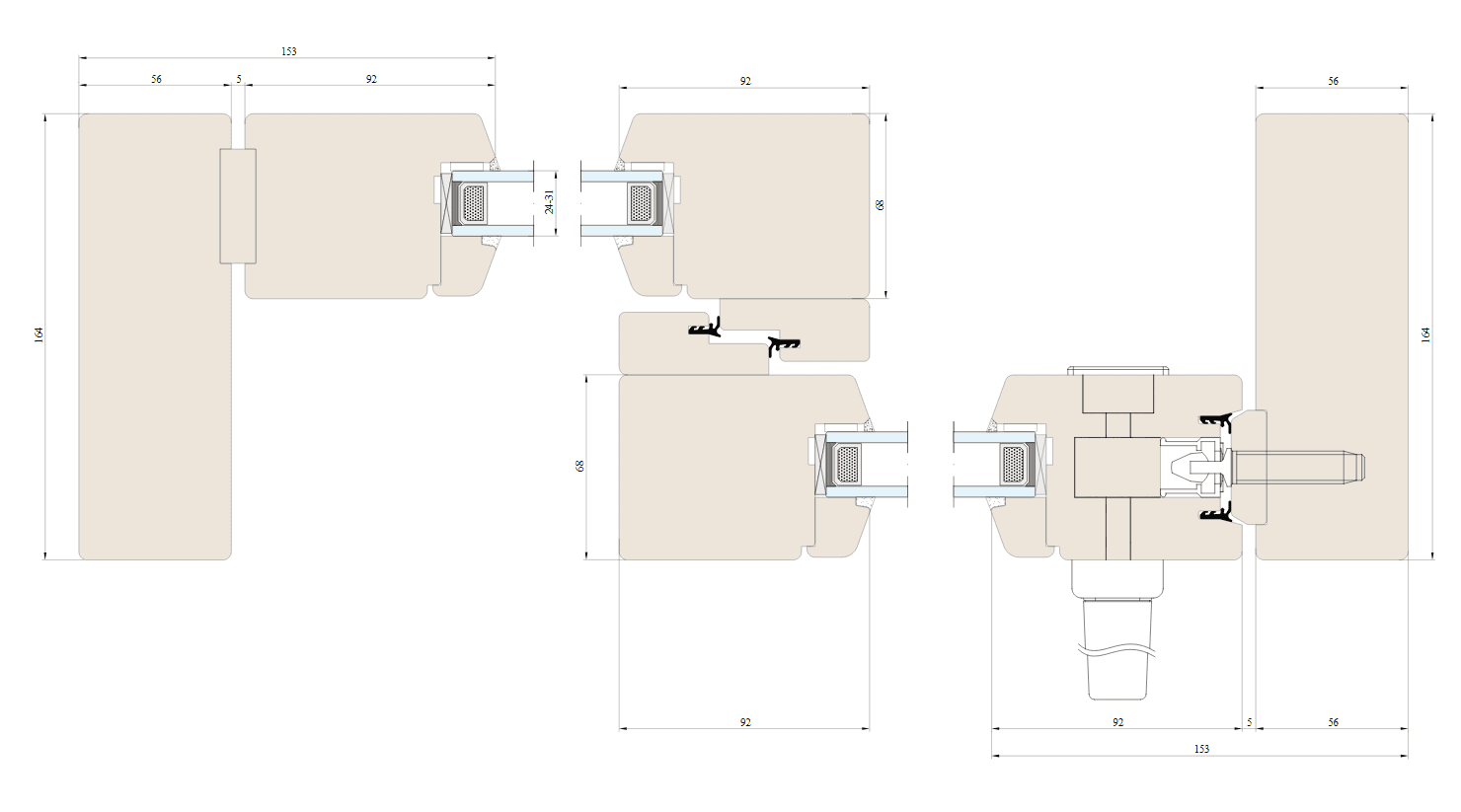
164
profundidade de construção [mm]
Ensaios
Perfil com uma profundidade de construção de 164 mm
Envidraçamento com unidades de vidro de 24-32 mm
Peso máximo da folha 350 kg
Dimensão mínima da folha 700 x 840 mm
Dimensão máxima da folha 3300 x 2716 mm
Tipos de acabamento da madeira: cores da paleta stain, cores da paleta RAL, verniz incolor, impregnação incolor, madeira em bruto
Colaboramos com fornecedores que possuem certificação FSC























