Unico
O sistema de janelas UNICO com rutura térmica adapta-se perfeitamente aos edifícios com maiores necessidades de consumo de energia. Com a utilização deste sistema, podemos fabricar não só janelas, mas também portas, fachadas e todo o tipo de estruturas.
1,3
Uw dla Ug= 0,7
(espaçador de alumínio)
2,4
Uf [W/m.K]
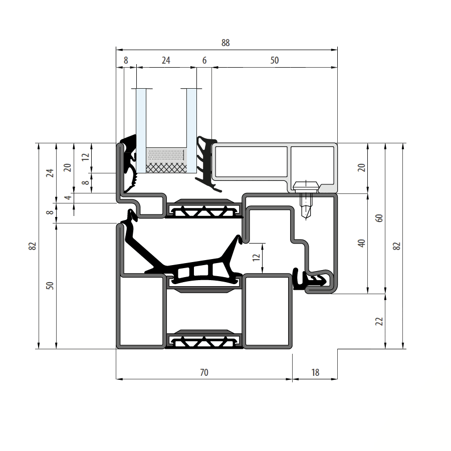
70
profundidade [mm]
Desenho do corte
perfil com uma profundidade de 70 mm
vidros até 60 mm
perfis de aço galvanizado
uma rutura térmica em aço inoxidável proporciona uma estabilização adicional da estrutura
lacado na gama completa de cores RAL K7 e, a pedido, noutras cores (utilizar o código)
















